estúdio baobab
Estúdio Baobab
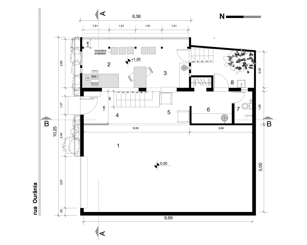
Este galpão na Vila Madalena em São Paulo, foi escolhido pelo fotografo Felipe Hellmeister junto com as arquitetas Melissa Paro, Suzana Glogowsky e Thais Ribeiro para abrigar seu estúdio fotográfico.
No projeto de reforma, maior parte do galpão existente foi destinada ao uso do estúdio e o restante da área é a circulação, vestiário e banheiro. A antiga varanda, elevada 1,20m do piso do galpão, foi fechada com novas vedações e novo telhado, abrigando a área de escritório, administração e copa. Este espaço elevado é totalmente integrado ao estúdio através de grandes aberturas e articulado pela escada, tratada como um elemento de destaque. O estúdio é fechado por painéis de correr em lona blackout.
A nova fachada unifica os 2 volumes e brinca com novos com rasgos de iluminação.
Cores claras, paredes brancas para refletir luminosidade, piso em cimento queimado branco, com peças destacadas, como a escada e a porta da entrada, através do uso da cor vinho.
Ficha Técnica
Local: Vila Beatriz, São Paulo, SP
Data do projeto: 1999
Data de conclusão da obra: 1999
Área do terreno: 101,30 m2
Área construída: 92,70 m2
Arquitetura: Melissa Paro, Suzana Glogowsky e Thais Ribeiro
Luminotécnica: Melissa Paro, Suzana Glogowsky e Thais Ribeiro
Colaboradores: Eng. Ricardo Lima de Mello
Fotografia: Felipe Hellmeister e Melissa Paro
Este projeto foi publicado na revista Projeto de outubro de 2000.
Veja mais em publicações





